Mittelbau
- KategorieGewerbe
- Jahr2019
- OrtMarktoberdorf
- ProgrammErweiterung und Aufstockung eines Autohauses
- PhasenPlanung, Ausführung
- Nutzfläche490 m2
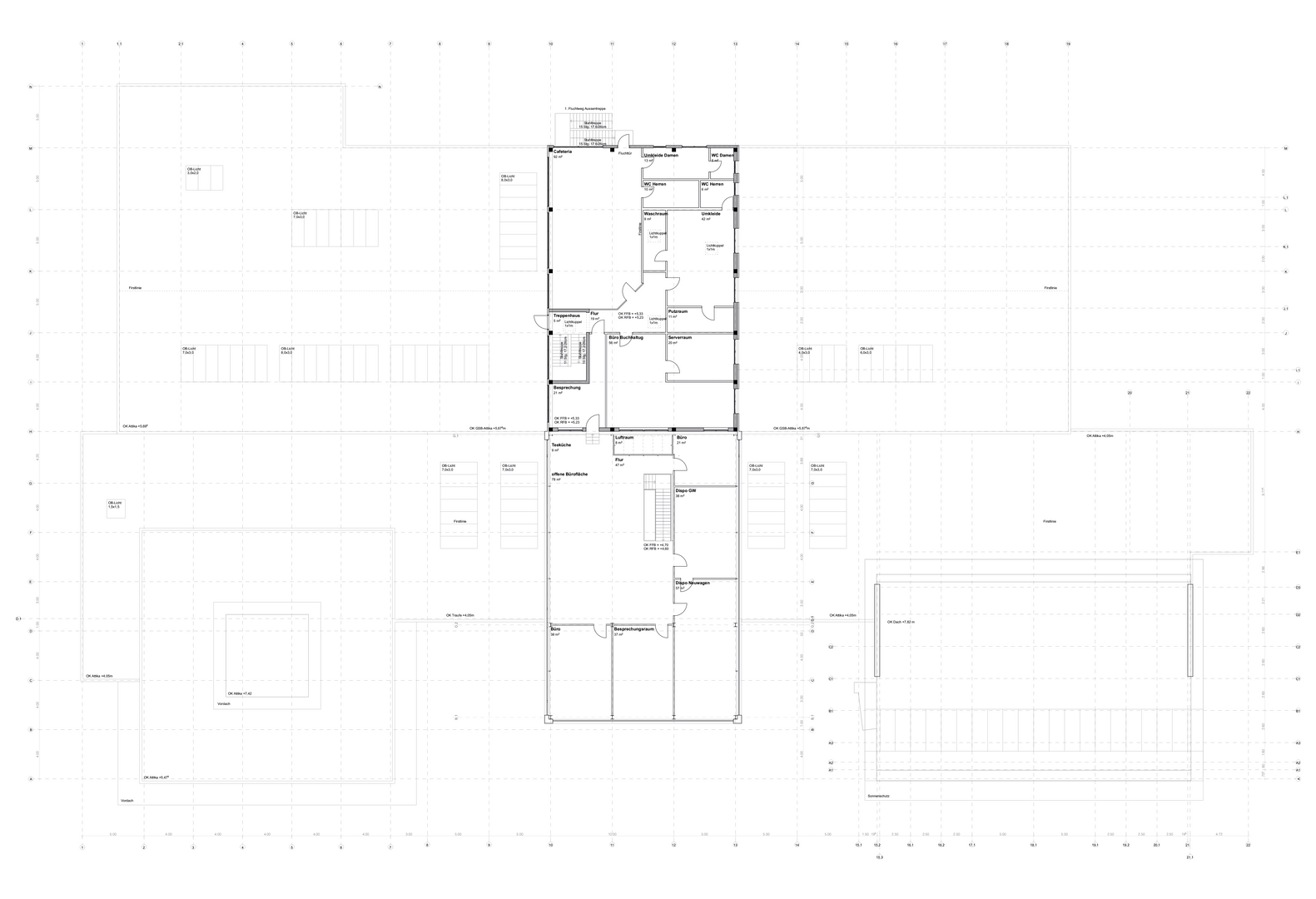
Das Betriebsgebäude eines Autohauses mit zwei Ausstellungshallen, Werkstätten und Bürotrakt wird mit einer Auslieferungshalle und einem Bürogeschoss erweitert und aufgestockt.
Das neue Gebäudevolumen tritt mittig in der beinahe 100 m langen Strassenfassade
zwischen den beiden Ausstellungshallen in Erscheinung. Die Stahlkonstruktion wird mit den gleichen Aluminiumblechen der Bestandsfassaden verkleidet. Das gleichmässige Raster der Pfostenriegelverglasungen legen zusammen mit den vertikalen Lisenen der Aluminiumfassade ein strenges Raster über das neue Volumen.
Baumanagement, Statik, Brandschutz, Energienachwei: IGS Ingenieurgesellschaft mbH
Elektroplanung: PB Huber
HLSK-Planung: Urlbauer Haustechnik GmBH & Co. KG
Fotos: Sebastian Schels
Fotos Teppich: Forbo Flooring, Jörg Schleicher









