1/3
Schmetterling
- KategorieUmbau
- Jahr2022
- OrtStötten am Auerberg
- ProgrammWohnen
- PhasenStudie
- Nutzfläche
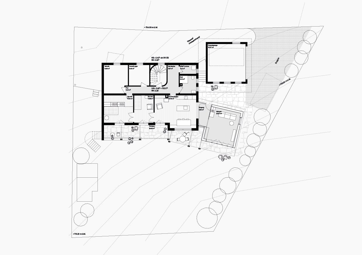
Wie mit zwei asymmetrischen, additiven Schmetterlingsflügel wird das Mehrfamiliehaus mit Doppelgarage auf einem abfallenden Grundstück um einen Wohnraum auf dem Gartengeschoss für eine neue barrierefreie Wohnung und ein Carportdach mit neuem Eingang auf dem höheren Strassenniveau für die Wohnung im Erd- und Dachgeschoss erweitert.
Item 1 of 3


