1/3
Textilmuseum
- KategorieKultur
- Jahr2020
- OrtSt. Gallen
- ProgrammMuseum
- PhasenIdeenwettbewerb
- Nutzfläche
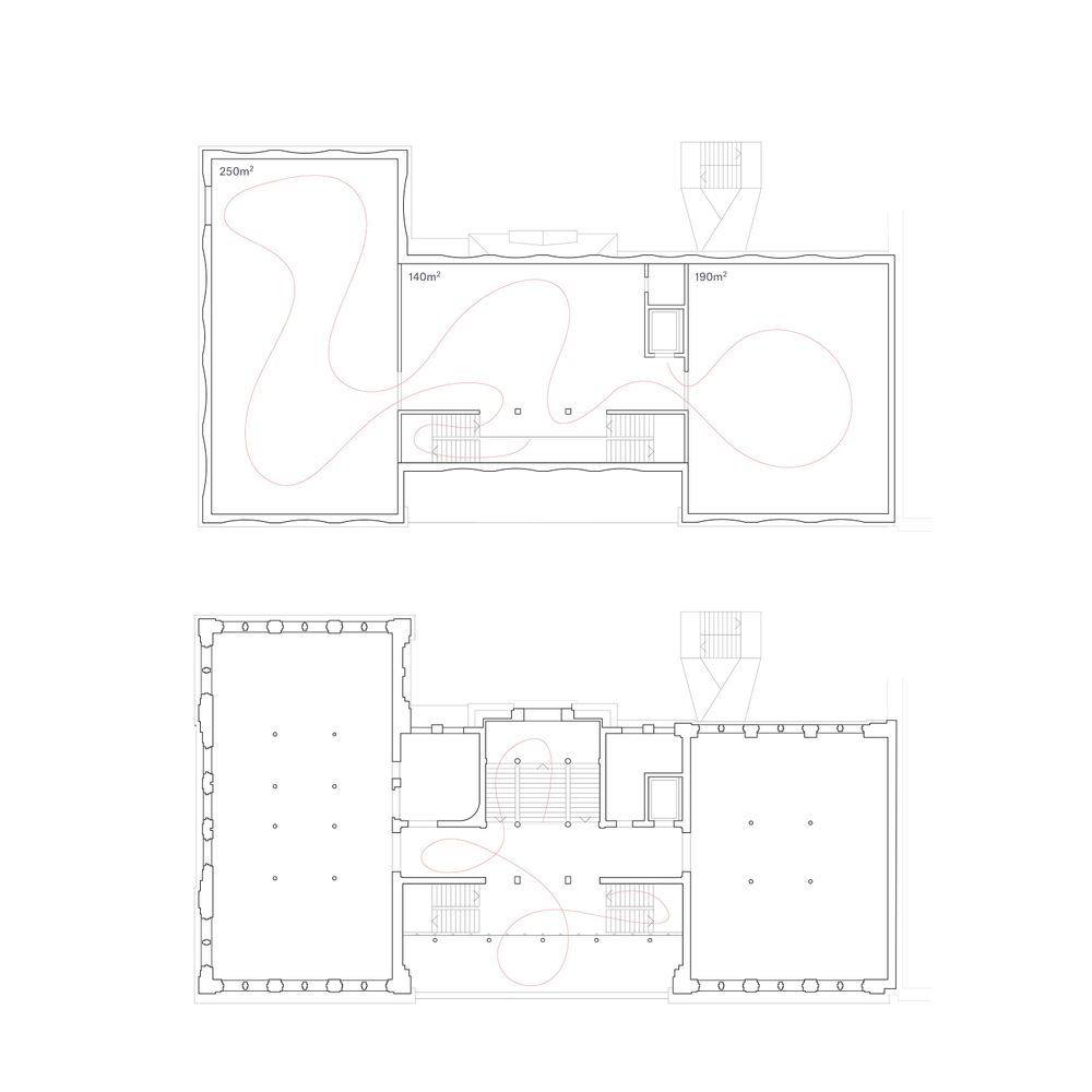
Der altehrwürdige Palast des Textilmuseums St. Gallen wird mit einem einfachen, skulpturalen Baukörper aufgestockt. Die neue Fassadengestaltung und innerer Struktur sprechen eine anderer Sprache als der Bestand. In stark reduzierter Form werden Volumen und Elemente der strukturbezogenen Gestaltung von Fassade und Gesims auf den verkleideten Stahlskelettbau übertragen.
Zusammenarbeit mit Marco Duarte, Christina Scheifele und Sonja Widmer
Item 1 of 3


