1/2
Unterm Dach
- KategorieWohnen
- Jahrseit 2017
- OrtMarktoberdorf
- ProgrammAusbau Dachgeschoss Mehrfamilienhaus
- PhasenPlanung, Ausführung, Bauleitung
- Nutzfläche75 m2
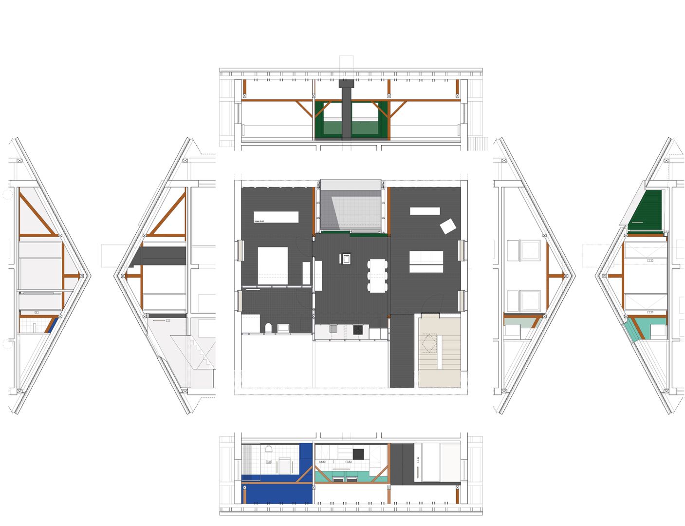
Das Dachgeschoss eines Mehrfamilienhaus wird zu einer Wohnung ausgebaut. Die Raumaufteilung orientiert sich an der Struktur des niedrigen Pfettendachstuhls. Im Süden wird die Dachfläche für eine Dachterrasse und zur besseren Belichtung des tiefen Wohnraumes eingeschnitten.
Energieberatung: Wolfang Bolz

Item 1 of 2

